background
0%
Звук: вимкнено
image
Дизайн інтер'єру

SHKRUB

Історії про Солом’яну хатку

Прокрутіть вниз

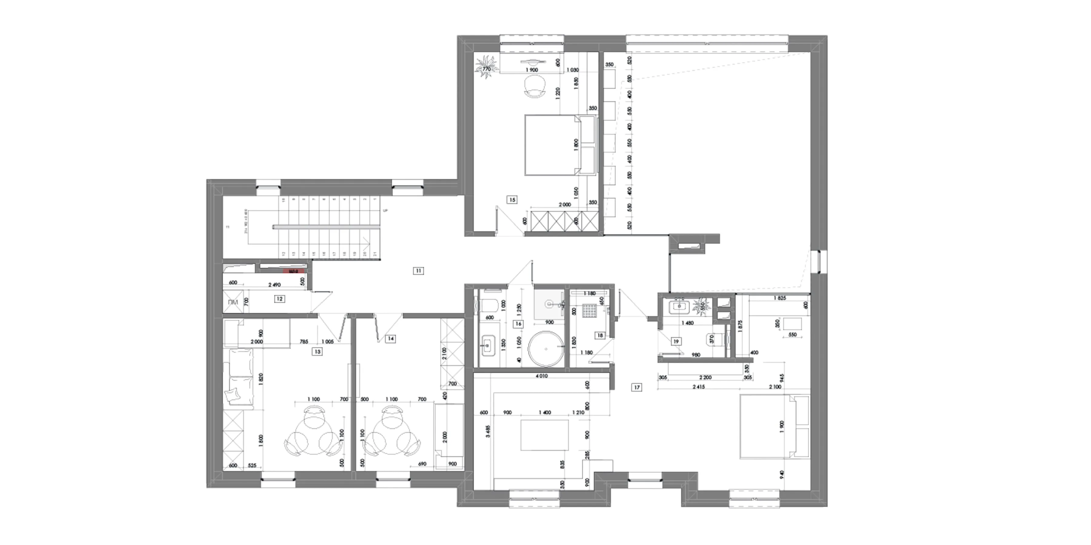
Тип

Приватний будинок

Локація

Козин, Київська область
Україна

Площа

370 кв.м

Рік

2019

Дім, як конструктор, зібраний з улюблених матеріалів Сергія Махна: льон, дерево, глина, метал. Усе найкраще, що нам подарувала природа.

Глина. Тут є декілька сортів української глини. Стіни оздоблені у дев’яти техніках. Одна з них, наприклад, зазвичай використовується для створення керамічних скульптур. Щоб отримати текстуру з рівномірними ум’ятинами, стіни покрили глиною і били дерев’яною ложкою, доки не засохне. Також за давніми українськими традиціями з глиною змішали насіння льону, жита, пшениці — така техніка використовувалася ще за часів Трипілля.

 

Кераміка. Усе освітлення в домі — це авторський дизайн від MAKHNO Studio. Зроблене вручну, в обмеженій кількості, однією людиною для іншої. У головній вітальні — наші KHMARA, з яких ніколи не падає дощ і які також можна знайти у галереї в Парижі. Раковини та дитяча ванна також створені у керамічній майстерні Сергія Махна.

 

Про пристрасть

Дім Шкруба має два входи — з фасаду та внутрішнього двору. Мешканцям одразу полюбився другий. Тим паче одразу біля нього — тераса, що вечорами освітлюється зорями та авторськими світильниками від Сергія Махна.

Про Шкруба

Напевно, вам цікаво, що значить слово Shkrub. Шкруб — це любов, це повага і терпіння, це дім, це сини, це 10 років разом.

Про чай

Обідня зона — улюблена в цій сім’ї. Вона співає оду дереву — теплому, простому, досконалому. З кожного місця за столом відкривається чудова перспектива — на вітальню, сад або терасу. Якщо Сергія запитати, що для нього значить Японія — першою називає чайну церемонію. У цьому будинку чашками для чаю користуються частіше, ніж винними келихами.

Про точку зору

Сходи на другий поверх тримають скляні поручні та руді TETRAPODS — авторську плитку MAKHNO Studio, на створення якої нас надихнули кількатонні тетраподи, що захищають береги від руйнівних хвиль.

Про рід

Батьки Сергія — часті гості у цьому домі. В Україні зв'язок бабусі-дідуся з онуками дуже сильний. Вважається, що онуків люблять сильніше за дітей. Тому вечорами, коли подружжя має справи в місті, двох шибеників глядять бабуся з дідусем. Кімната виконана дуже просто і стримано. Традиційний для Японії низький матрац батьків уже не дивує — до експериментів творчого сина звикли.

Про Івана — римського школяра

Іван — старший син Сергія. Він навчається в Італії та планує продовжити справу батька. Його кімната традиційно виконана у темних кольорах. Головним акцентом тут є краєвид на сад і підлога з 500-річного мореного дубу. Свою кімнату він ділить із Kaws-ами й авторськими артіграшками від свого батька — керамічними DIDO.

Про Хікару — того, хто сяє

Це дуже важлива кімната в домі. Тут запускатимуть ракети в космос і перемагатимуть піратів.

Про Тадао — того, хто носить одне ім’я з Тадао Андо

Тут житимуть дитячі мрії. А значить, тут оселиться саме життя. Кімната наймолодшого — також мінімалістична і простора.

Історія про історії

Те, чого не видно Приховані місця для зберігання. Дотримуючись принципів вабі-сабі, у будинку організували багато закритих зон для усього, необхідного сім’ї: одяг, їжа, іграшки. Це місткі шафи у кімнатах, комори, погріб. Щоб дихати — потрібне повітря, а не нагромадження речей.

Про пристрасть

image

SHKRUB

Дім Шкруба має два входи — з фасаду та внутрішнього двору. Мешканцям одразу полюбився другий. Тим паче одразу біля нього — тераса, що вечорами освітлюється зорями та авторськими світильниками від Сергія Махна.

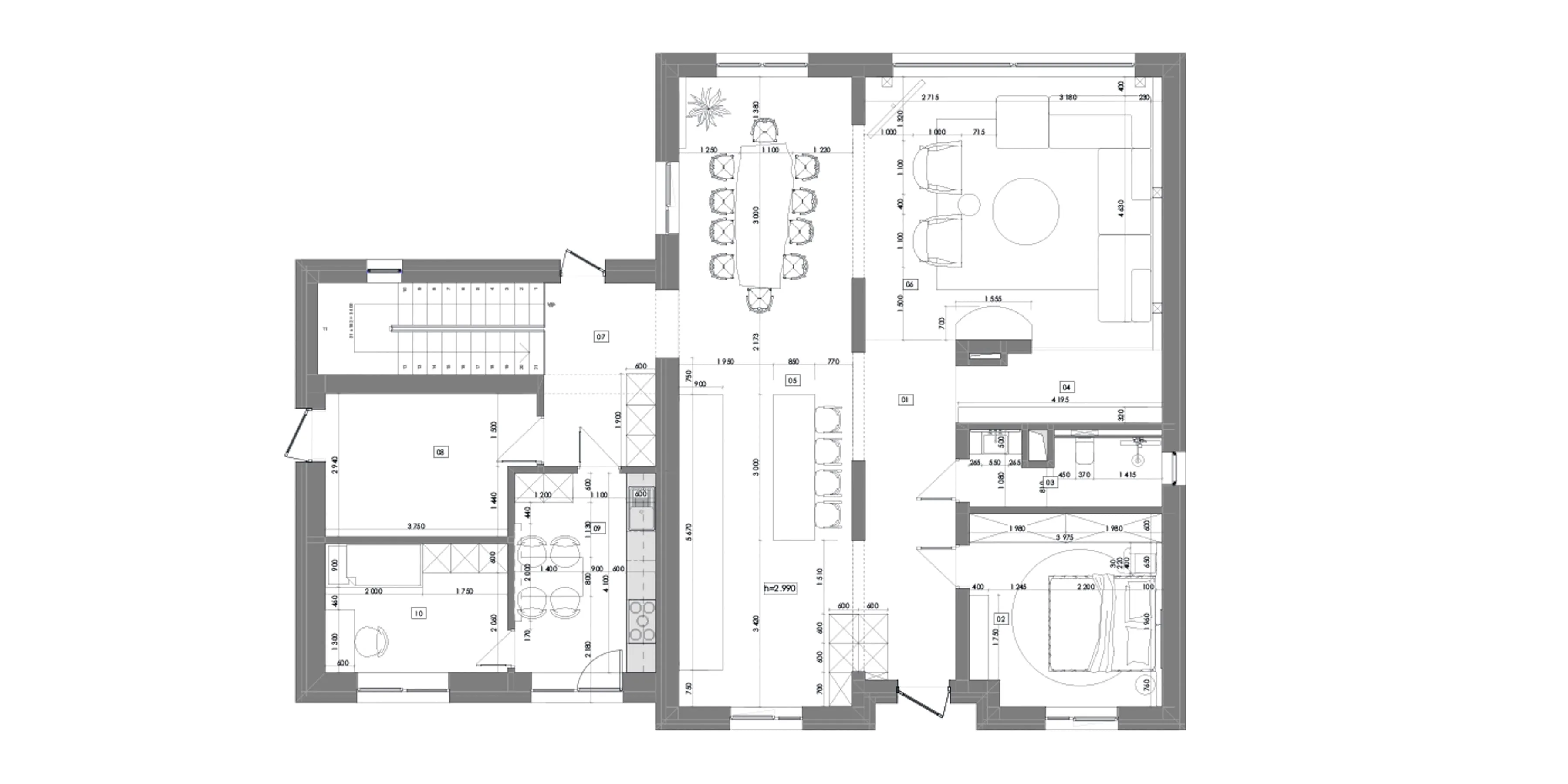
Крок в дім і глиняна прохолода поглинає не тільки телефонний зв’язок, а й усі тривоги, «терміново» і «потрібно». Праворуч побігли сходи на другий поверх, а по ліву руку розташувалася основна зона будинку.

Стіни оздоблені в техніці, яку використовували ще наші діди-прадіди у хатах-мазанках. Умовно простір поділений на три частини: відкрита кухня, обідня зона та вітальня. Ця частина зазнала найбільших змін під час перепланування будинку, який тут стояв до того, як його власником став архітектор.

Об’єднати два поверхи — єдине правильне рішення для цього об’єкту. Тому що усі архітектори розуміють, що простір і світло — це найкраще, що можна подарувати будинку. З величезного вікна відкривається панорама на весь сад, а сімейні історії оберігає мовчазний гість — скульптура «Дощ» від Назара Білика.

Про Шкруба

image

SHKRUB

Напевно, вам цікаво, що значить слово Shkrub. Шкруб — це любов, це повага і терпіння, це дім, це сини, це 10 років разом. Це вигадане слово, яким одне одного називає подружжя — Сергій і його дружина Влада, яка також займається дизайном інтер’єрів. Вони навіть так записані один в одного в телефонних книгах.

Про чай

image

SHKRUB

Обідня зона — улюблена в цій сім’ї. Вона співає оду дереву — теплому, простому, досконалому. З кожного місця за столом відкривається чудова перспектива — на вітальню, сад або терасу. Якщо Сергія запитати, що для нього значить Японія — першою називає чайну церемонію. У цьому будинку чашками для чаю користуються частіше, ніж винними келихами.

Дім має дві кухні. Мінімалізм відкритої підкреслює дерев’яний стіл з барахолки, яким ми замінили стільницю. Це стіл 1935 року, за яким обідало кілька поколінь гуцульської сім’ї. Закриту кухню оформили за українськими звичаями. Над столом тут розташувався мисник — особливі традиційні полиці для посуду. Фартух кухні захищає авторська керамічна плитка Сергія Махна SKELYA. З кухні можна вийти у двір через вікно — все в цьому домі зроблено для легкості прийняття рішень.

Про точку зору

image

SHKRUB

Сходи на другий поверх тримають скляні поручні та руді TETRAPODS — авторську плитку MAKHNO Studio, на створення якої нас надихнули кількатонні тетраподи, що захищають береги від руйнівних хвиль.
Планування другого поверху просте та ергономічне. Це коридор-галерея та спальні для усіх мешканців. Коридор закінчується балконом із видом на вітальню та сад — перше що бачать власники, коли зранку виходять зі своїх апартаментів.
З оздоблення тут керамічна плитка 16 століття та янголи-охоронці над дверима у дитячі спальні. З вікна відкривається краєвид на другий рівень кам’яного саду — його облаштували на даху тераси. Це аналогія одного з найвідоміших японських садів — кам’яного саду Рьоан-дзі, що в Кіото. Камені та пісок у Рьоан-дзі тут ніби море і суша, дві нероздільні сутності. 15 великих каменів саду викладені таким чином, що з будь-якої точки галереї, як не старайся, а побачити разом можна не більше 14 каменів. Вважається, що побачити всі 15 може тільки людина, яка досягла справжнього просвітлення.

Про рід

image

SHKRUB

Батьки Сергія — часті гості у цьому домі. В Україні зв’язок бабусі-дідуся з онуками дуже сильний. Вважається, що онуків люблять сильніше за дітей. Тому вечорами, коли подружжя має справи в місті, двох шибеників глядять бабуся з дідусем. Кімната виконана дуже просто і стримано. Традиційний для Японії низький матрац батьків уже не дивує — до експериментів творчого сина звикли.

І вперше наш FLAPJACK, що отримав Red Dot Design Award 2017, виконаний у цьому кольорі. І здається, йому пасує. Гостьовий санвузол — галерея авторської плитки від Сергія Махна. Тут наші GRASS, і EARTHQUAKE у двох виконаннях: зі звичайною глазур’ю та металізовані.

Про Івана — римського школяра

image

SHKRUB

Іван — старший син Сергія. Він навчається в Італії та планує продовжити справу батька. Його кімната традиційно виконана у темних кольорах. Головним акцентом тут є краєвид на сад і підлога з 500-річного мореного дуба. Свою кімнату він ділить із Kaws-ами й авторськими артіграшками від свого батька — керамічними DIDO.

В узголів’ї ліжка-татамі — традиційний для філософії вабі-сабі монохромний живопис в стилі Сумі-е — відсторонені, далекі пейзажі, ніяких золотих рам.

Про Хікару — того, хто сяє

image

SHKRUB

Це дуже важлива кімната в домі. Тут запускатимуть ракети в космос і перемагатимуть піратів. Тут будуть знаходити скарби й ховати свої так, що не знайде навіть мама. Сюди притягнуть з вулиці кошеня. А ще замастять стіни зеленкою, і, можливо, відірвуть Kaws-у вухо. Розпис на стінах, до речі, виконав Сергій Махно. Він малює з дитинства, і досі більшість його авторських речей спочатку з’являються на папері.

Про Тадао — того, хто носить одне ім’я з Тадао Андо

image

SHKRUB

Тут житимуть дитячі мрії. А значить, тут оселиться саме життя. Кімната наймолодшого — також мінімалістична і простора.

Шпалери створив Сергій Махно власноруч. Спочатку батько наніс хаотичні плями синьої фарби на крафтові листки, а потім, уже на стіні, — їх розписав відомий український художник і кераміст, друг сім’ї Сергій Радько. Це традиційні для його творчості сюжети — тварини і птахи, які живуть в українських селах і символізують родину.

Хоча молодші сини ще зовсім маленькі — 2 і 4 роки, для подружжя було важливо, щоб у кожного був свій власний простір. Простір, який вони перетворять у всесвіт.

Історія про історії

image

SHKRUB

Те, чого не видно

Приховані місця для зберігання. Дотримуючись принципів вабі-сабі, у будинку організували багато закритих зон для усього, необхідного сім’ї: одяг, їжа, іграшки. Це місткі шафи у кімнатах, комори, погріб. Щоб дихати — потрібне повітря, а не нагромадження речей.

Розумний дім. Будинок оснащений системою «розумний дім». Але тільки дійсно потрібні функції, а не коли вічно забуваєш як увімкнути світло — плеснути в долоні чи підстрибнути. Музика у санвузлі хазяйської спальні вмикається як тільки відчиняєш двері. Температура повітря, вентиляція, звук і світло — всім можна керувати за допомогою планшету. За оснащення дому «мозком» відповідала українська компанія D8.

Окрім того, дім — енергоефективний. Тут є геотермальна свердловина та сонячні батареї. Якщо жити, то в гармонії з природою.

Drag