background
0%
Звук: вимкнено
image
Дизайн інтер'єру

RIDNYI HOUSE

Тут — рідне все

Прокрутіть вниз

Тип

приватний будинок

Локація

Київ,
Україна

Площа

1066 кв.м

Рік

2019

На будівництво Рідного дому пішло 11 років. Наша студія працювала над ним 6 років. Без поспіху, виважено, враховуючи кожну деталь.

Спочатку власники хотіли класичний сімейний особняк з арками. Але протягом перших трьох років спільної роботи над проектом їхня прихильність до класики похитнулася, і вони погодилися на бетон, метал і багато дерева.

В результаті інтер’єр триповерхової будівлі був розроблений в сучасному українському стилі, що поєднує японську філософію вабі-сабі та українські традиції.

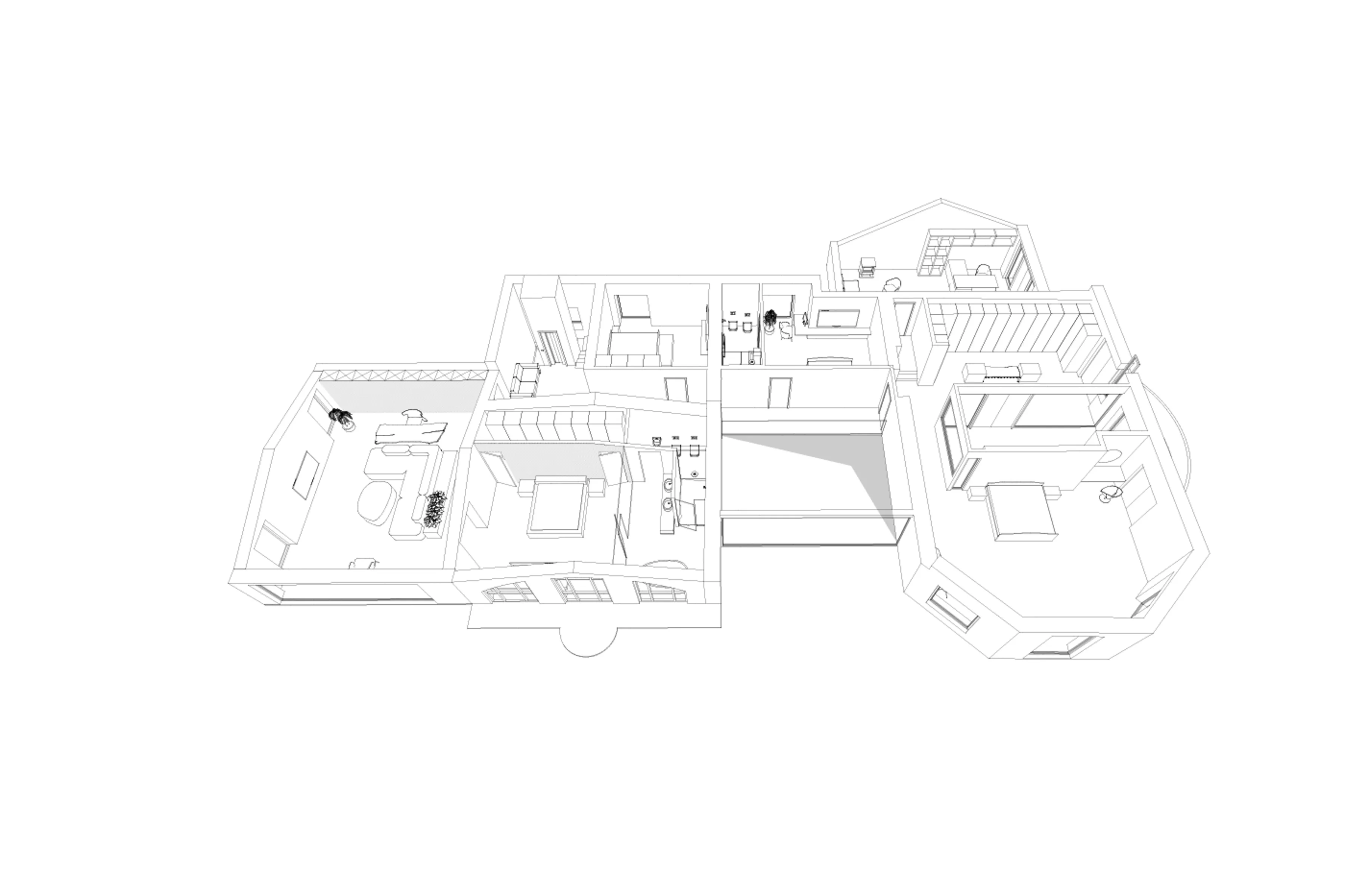
Перший поверх

У рідному домі і стіни лікують. Особливо, коли вони по пантону. Нещодавно інститут кольору Pantone обрав «класичний синій» кольором 2020-ого року, а рік тому ми вирішили, що такими будуть стіни всередині RIDNYI House.

Другий поверх

Тут будуть спати і прокидатися. Другий поверх — це три блоки: для батьків, дітей та гостей.

Мінус перший поверх

Із вікон видніється річка. За річкою — поле. За полем сплять втомлені сонця.

image image

обговорити
спільний проєкт

Залишити запит
Залишити запит

Нагороди та публикації (3)

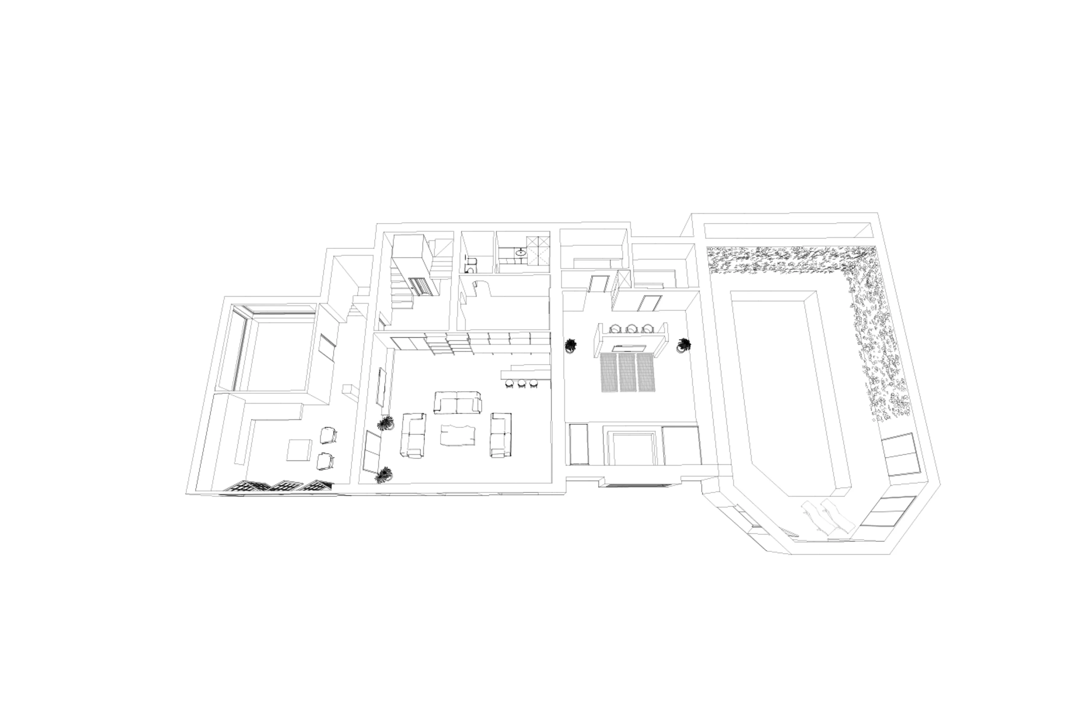
Перший поверх

image

RIDNYI HOUSE

У рідному домі і стіни лікують. Особливо, коли вони по пантону. Нещодавно інститут кольору Pantone обрав «класичний синій» кольором 2020-ого року, а рік тому ми вирішили, що такими будуть стіни всередині RIDNYI House.

Перший поверх будинку — це велика вітальня, столова, кухня та професійна зона барбекю. Вітальня з каміном — простора та м’яка у своїй колірній гамі.
Авторські керамічні вази з ікебанами наповнюють простір сенсами та квітами. У столовій кімнаті об’єдналися два поверхи і з’явилося достатньо місця для білих пухких KHMARA від Сергія Махно.

За столом сидить велика дерев’яна лава та дизайнерське крісло ELEPHANT, чекають вечері. А вечеря готується на кухні — там світло і дубові пласти замість стільниці. Зона барбекю може легко стати терасою — вікна можна регулювати.

Темна частина зони тримає стіл та обладнання для обробки м’яса з ліанами понад ним. Світла частина освітлена авторськими світильниками PARASOLKA від МAKHNO Products. Попід — дерев’яний стіл з пеньками замість ніжок.

Другий поверх

image

RIDNYI HOUSE

Тут будуть спати і прокидатися. Другий поверх — це три блоки: для батьків, дітей та гостей.

Другий поверх — це три блоки: для батьків, дітей та гостей. Батьківська спальна кімната — білосніжна пані з кількома кольоровими нюансами. Ванна кімната не соромиться — тримає за склом все необхідне. Поряд — робочий кабінет та гардероб. Гостьовий блок — дві кімнати зі спільним санвузлом та живописом Сергія Махно.

Ми будували цей будинок надто довго, щоб він вийшов рідним.
Тому тут — рідне все.

Мінус перший поверх

image

RIDNYI HOUSE

Із вікон видніється річка. За річкою — поле. За полем сплять втомлені сонця.

Весь поверх слугує місцем для відпочинку. Тут знаходиться басейн, сауна, джакузі та спа з відкритим кам’яним залом. М’яка зона з каміном і більярдна кімната огорнуті в бетон та кортенову сталь. Понад дубовими клаптями висить міланівська красуня — керамічна лампа LAVA від MAKHNO Products, яка приїхала в дім відразу після дефіле на міжнародній виставці дизайну iSaloni.

Drag