background
0%
Звук: вимкнено
image
Архітектура

FUTAGO

Одне серцебиття на двох

Прокрутіть вниз

Тип

приватний будинок

Локація

Київська область

Площа

5 000 m2

Рік

2020

Будинок складається з двох однакових частин: це наші брати-близнюки, які гордо піднімають свої консольні голови і дивляться один одному в очі. 30 000 тонн ґрунту, і тепер вони підносяться над ландшафтом, як мовчазні спостерігачі, що ділять одне серцебиття на двох.

 

“Цей будинок став одночасно і продовженням природи, і її протиставленням.  – це чистий аркуш паперу, в якому злилися тонни бетону, скла, пристрасть і сила людського духу. Все для того, щоб милуватися красою навколо і вчитися бачити красу всередині”, – коментує засновник студії та архітектор Сергій Махно.

FUTAGO в перекладі з японської означає “близнюки”. Це данина захопленню японською архітектурою загалом та архітектором Тадао Андо зокрема.

“Я не знаю напевно, чи став би я українцем у тому сенсі, в якому відчуваю себе зараз, якби не Японія. Вона допомогла мені усвідомити глибину і цінність української спадщини. У моєму світі – розуму, житті та творчості – ці дві культури створили чарівний, нерозривний симбіоз. Вони мають одне серцебиття на двох. Як у наших близнюків”, – ділиться Сергій Махно.

Такий проєкт трапляється дуже рідко. 

Будемо відвертими – клієнти, які готові до таких рішень і можуть собі їх дозволити, не щодня стукають у двері нашої студії. Власне, як і в будь-яку іншу студію.

Ці клієнти висловили свої побажання дуже чітко: отримати сучасний і мінімалістичний будинок, який стане новим етапом життя для їхньої родини після стриманої класики. І вони залишили нас робити свою роботу, абсолютно не втручаючись у творчий процес.

Так народилися двійнята.

FUTAGO – це наш прорив в українській приватній архітектурі. Будівництво проєкту зайняло 3 роки і стало справжнім ланцюжком викликів та сміливих рішень.

Виклики

Локація спонукала нас зробити все можливе, щоб вид з вікон став головною родзинкою проєкту.

Ніхто не подорожує
Ніхто не мандрує цим шляхом, окрім мене,
Цього осіннього вечора.
Мацуо Басьо

Моноліт будинку був залитий з 20 000 тонн бетону. Принциповим рішенням було замовити матеріал в українського виробника, оскільки логістика бетону складна і не екологічна, особливо в таких розмірах.

Загальний вид

Наближаючись до будинку, складається враження, що громіздкі бетонні прямокутники висять у повітрі – їхні вертикальні основи заховані за міцним парканом.

Нижня бетонна горизонталь слугує не лише опорою для верхньої консолі, але й терасою з газоном та роботами сучасних українських художників: "Простір навколо" Назара Білика, "Атлант" Єгора Зігура, "Кролі" Сергія Махна.

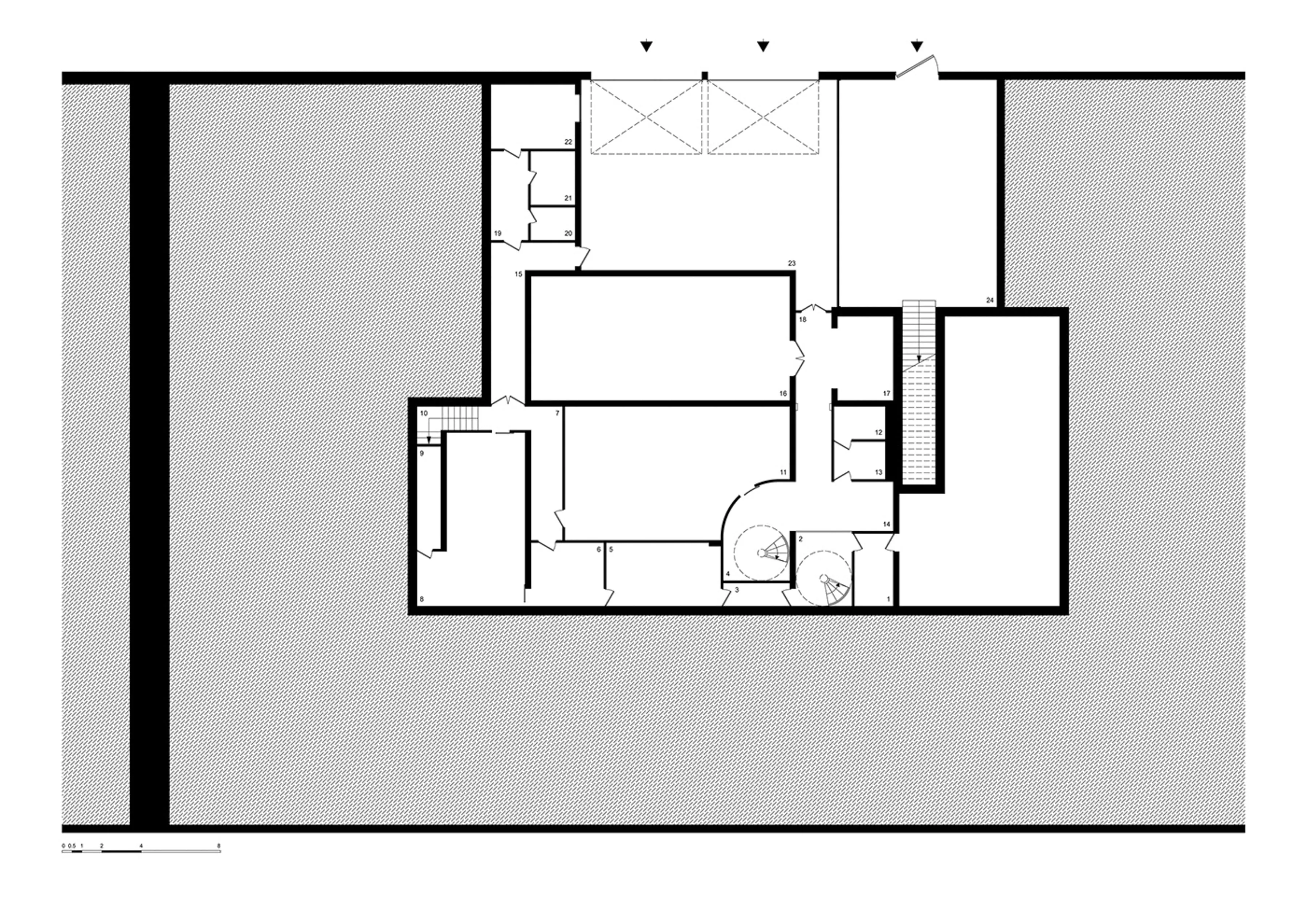
Level 0

1. Utility room. 2. Staircase. 3. Hallway. 4. Staircase. 5. Coldroom. 6. Utility room. 7. Hallway. 8. Working kitchen. 9. Ventilation equipment room. 11. American bar. 12. Lavatory. 13. Lavatory vestibule. 14. Hallway. 15. Hallway. 16. Fitness room. 17. Dressing room. 18. Entrance hall. 19. Hallway. 20. Staff lavatory. 21. Staff shower room. 22. Staffroom. 23. Garage. 24. Courtyard.

Level 1

25. Living & dining room. 26. Stairs for staff. 27. Entrance hall. 28. Lavatory vestibule. 29. Lavatory. 30. Cloakroom. 31. Staircase.

Level 2

32. Staircase. 33. Lavatory. 34. Bathroom. 35. Dressing room. 36. “Rock” bedroom. 37. Bathroom. 38. Lavatory. 39. Dressing room. 40. “Twilight” bedroom​​​​​​​. 41. “Day and night” bedroom. 42. Dressing room. 43. Lavatory. 44. Bathroom.

"Все можливо"

"Цей проєкт змінив нас і нашого клієнта. Вірю, що він також змінить світове сприйняття української житлової архітектури та дасть поштовх до нових архітектурних звершень, - розповідає архітектор Олександр Ковпак.

image image

обговорити
спільний проєкт

Залишити запит
Залишити запит

Нагороди та публикації (2)

Нагорода
Рік
01
The Architecture MasterPrize
(2021)
The Architecture MasterPrize
02
SBID
(2020)
SBID

Виклики

image

FUTAGO HOUSE

Локація спонукала нас зробити все можливе, щоб вид з вікон став головною родзинкою проєкту. Для цього ми завезли 30 000 тонн ґрунту і підняли обидві частини будинку на п’ятиметрову висоту. Таким чином, ми позбулися перешкод на горизонті, щоб повною мірою насолоджуватися краєвидом.

Моноліт будинку був залитий з 20 000 тонн бетону. Принциповим рішенням було замовити матеріал в українського виробника, оскільки логістика бетону складна і не екологічна, особливо в таких розмірах.

“Ми створили цей проєкт, щоб вийти за межі існуючих кордонів. Немає питань, які неможливо вирішити. Немає проєктів, які неможливо реалізувати. FUTAGO – яскравий тому приклад”, – розповідає Ольга Собчишина, головний інженер студії.

Ніхто не подорожує
Ніхто не мандрує цим шляхом, окрім мене,
Цього осіннього вечора.
Мацуо Басьо

image

FUTAGO HOUSE

Моноліт будинку був залитий з 20 000 тонн бетону. Принциповим рішенням було замовити матеріал в українського виробника, оскільки логістика бетону складна і не екологічна, особливо в таких розмірах.

“Ми створили цей проєкт, щоб вийти за межі існуючих кордонів. Немає питань, які неможливо вирішити. Немає проєктів, які неможливо реалізувати. FUTAGO – яскравий тому приклад”, – розповідає Ольга Собчишина, головний інженер студії.

Загальний вид

image

FUTAGO HOUSE

Наближаючись до будинку, складається враження, що громіздкі бетонні прямокутники висять у повітрі – їхні вертикальні основи заховані за міцним парканом.

Нижня бетонна горизонталь слугує не лише опорою для верхньої консолі, але й терасою з газоном та роботами сучасних українських художників: “Простір навколо” Назара Білика, “Атлант” Єгора Зігура, “Кролі” Сергія Махна.

Будинок обладнаний системою “Розумний дім” з потужною вентиляційною системою з технологією фільтрації повітря та збору пилу, терморегуляцією, підігрівом підлоги та скла. Все це приховано від неозброєного ока за завісою литого бетону.

Вертикальну опору  займають службові приміщення — гараж, технічна кухня, пральні та сушильні кімнати тощо. Логістика продумана таким чином, аби потоки мешканців будинку та технічного персоналу, наприклад, коли одночасно приїхали гості й доставили продукти, не перетинались. Перший поверх займає вітальня, на другому розташувалися приватні зони.

Level 0

image

Level 0

1. Utility room. 2. Staircase. 3. Hallway. 4. Staircase. 5. Coldroom. 6. Utility room. 7. Hallway. 8. Working kitchen. 9. Ventilation equipment room. 11. American bar. 12. Lavatory. 13. Lavatory vestibule. 14. Hallway. 15. Hallway. 16. Fitness room. 17. Dressing room. 18. Entrance hall. 19. Hallway. 20. Staff lavatory. 21. Staff shower room. 22. Staffroom. 23. Garage. 24. Courtyard.

Level 1

image

Level 1

25. Living & dining room. 26. Stairs for staff. 27. Entrance hall. 28. Lavatory vestibule. 29. Lavatory. 30. Cloakroom. 31. Staircase.

Level 2

image

Level 2

32. Staircase. 33. Lavatory. 34. Bathroom. 35. Dressing room. 36. “Rock” bedroom. 37. Bathroom. 38. Lavatory. 39. Dressing room. 40. “Twilight” bedroom​​​​​​​. 41. “Day and night” bedroom. 42. Dressing room. 43. Lavatory. 44. Bathroom.

"Все можливо"

image

FUTAGO

“Цей проєкт змінив нас і нашого клієнта. Вірю, що він також змінить світове сприйняття української житлової архітектури та дасть поштовх до нових архітектурних звершень, – розповідає архітектор Олександр Ковпак.

Архітектура – це завжди про нові смисли там, де їх не очікуєш.

Drag